Gleuel, Hürth, Deutschland, 2023
Doppelhaus in Gleuel
Wohnen
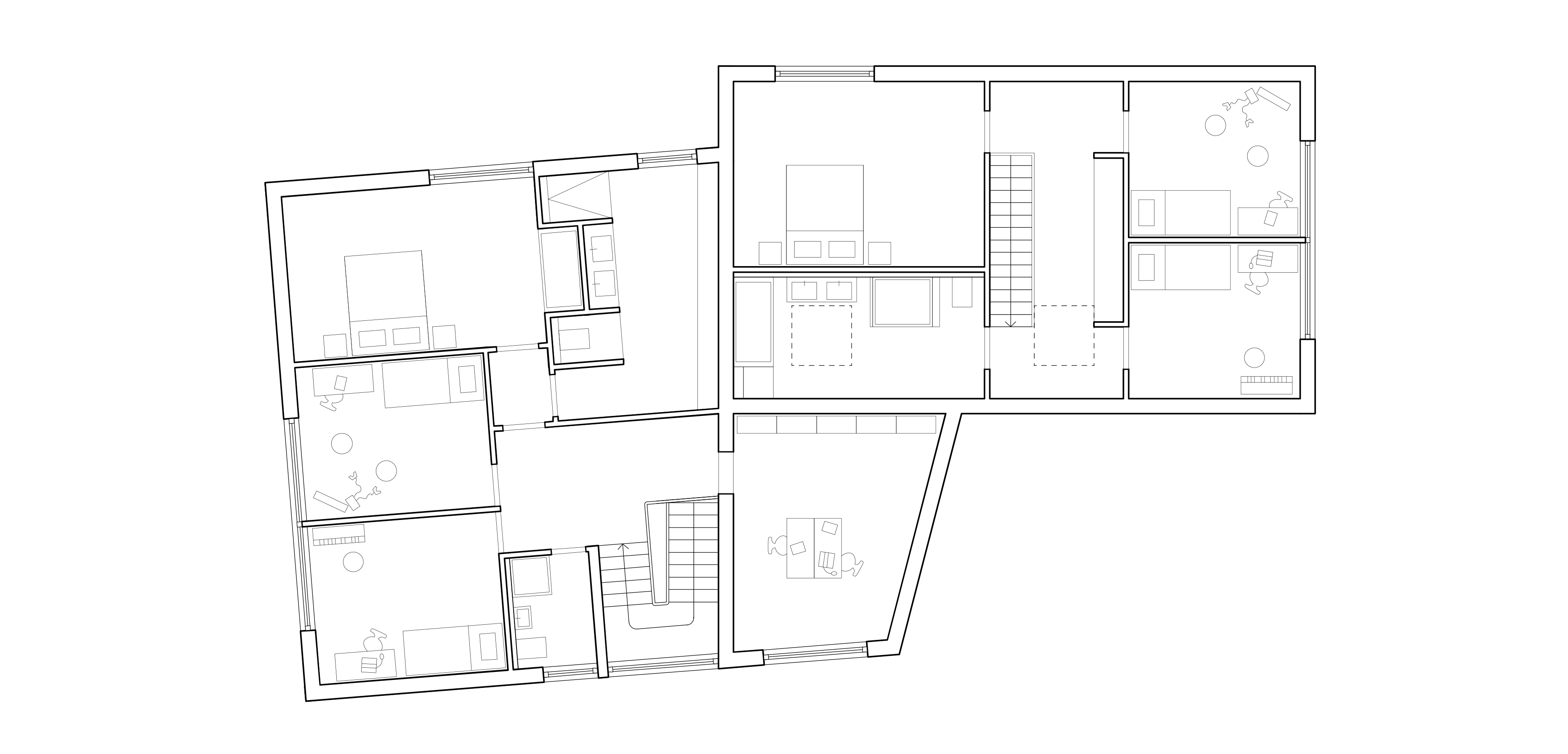
Das Doppelhaus in Gleuel zeichnet sich durch die vollständige Ausnutzung des maximalen Bauraums aus und erreicht eine Bruttogrundfläche von 609 m². Die Architektur verbindet optimale Flächennutzung mit hoher Wohnqualität und bietet zugleich eine harmonische Einbettung in die bestehende Bebauung. Die klare Geometrie der Fassaden sowie die sorgfältig platzierten Fensteröffnungen schaffen ein ausgewogenes Verhältnis von Privatsphäre und Lichteinfall.
Die Wahl der Materialien spiegelt eine zurückhaltende Eleganz wider: Die Fassaden sind in einem hellen, mineralischen Putz gehalten, der in Kombination mit feinen Holzdetails für ein warmes und einladendes Ambiente sorgt. Die großflächigen Fenster sind in hochwertigem, pulverbeschichtetem Aluminium gefasst und tragen zur durchgängigen Lichtdurchflutung der Räume bei. Innen wurden natürliche Materialien wie Eichenparkett und travertinähnliche Fliesen verwendet, die eine zeitlose Ästhetik verkörpern und die ruhige Atmosphäre der Wohnräume unterstützen.
Durch die präzise Planung konnten die Abstandsflächen maximal genutzt werden, was zu einer großzügigen Raumgestaltung führt, ohne dabei die ästhetischen Aspekte der Architektur zu vernachlässigen.
Realisierung 2022
Team: Benedict Esche, Lionel Esche, Berke Sevketoglu
Bauherr: Privat
Visualisierung: Spectrum.Vis
Areal 446 m²
BGF 609 m²
Doppelhaus in Gleuel
Wohnen
Das Doppelhaus in Gleuel zeichnet sich durch die vollständige Ausnutzung des maximalen Bauraums aus und erreicht eine Bruttogrundfläche von 609 m². Die Architektur verbindet optimale Flächennutzung mit hoher Wohnqualität und bietet zugleich eine harmonische Einbettung in die bestehende Bebauung. Die klare Geometrie der Fassaden sowie die sorgfältig platzierten Fensteröffnungen schaffen ein ausgewogenes Verhältnis von Privatsphäre und Lichteinfall.
Die Wahl der Materialien spiegelt eine zurückhaltende Eleganz wider: Die Fassaden sind in einem hellen, mineralischen Putz gehalten, der in Kombination mit feinen Holzdetails für ein warmes und einladendes Ambiente sorgt. Die großflächigen Fenster sind in hochwertigem, pulverbeschichtetem Aluminium gefasst und tragen zur durchgängigen Lichtdurchflutung der Räume bei. Innen wurden natürliche Materialien wie Eichenparkett und travertinähnliche Fliesen verwendet, die eine zeitlose Ästhetik verkörpern und die ruhige Atmosphäre der Wohnräume unterstützen.
Durch die präzise Planung konnten die Abstandsflächen maximal genutzt werden, was zu einer großzügigen Raumgestaltung führt, ohne dabei die ästhetischen Aspekte der Architektur zu vernachlässigen.
Realisierung 2022
Team: Benedict Esche, Lionel Esche, Berke Sevketoglu
Bauherr: Privat
Visualisierung: Spectrum.Vis
Areal 446 m²
BGF 609 m²